全部的市政消防工程給排水現場施工圖識圖!
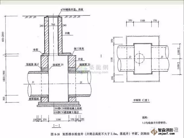
接手市政工程,首先得會識圖。市政給排水工程圖紙怎么看?下面就跟小編一起,從給排水管道材料、構造開始,對附屬構筑物,管道平面圖,管道縱斷面圖,構筑物詳圖來個全方位的解讀,你一定不能錯過!


























































海灣消防安全有限公司主營:GST海灣消防報警設備銷售,消防工程施工改造,氣體滅火、電氣/漏電火災、消防水系統施工安裝,售后維修保養,檢測,調試,海灣消防網站:http://www.rd06mj.cn/;海灣消防服務熱線:4006-598-119
本頁關鍵詞:
技術資料更多 >>


蘇公網安備32058102002148號